Cala d`OrModerne, komplett renovierte Wohnung in Cala d`Or mit großer Terrasse nur wenige Gehminuten vom Meer entfernt
Beschreibung der Immobilie
Diese modernisierte Wohnung befindet sich in begehrter Lage von Cala d’Or. Das Ortszentrum mit seinen vielfältigen Restaurants, Cafés und Einkaufsmöglichkeiten ist bequem in wenigen Gehminuten erreichbar. Auch der traumhafte Sandstrand Cala Esmeralda sowie zwei weitere malerische Badebuchten liegen ganz in der Nähe.
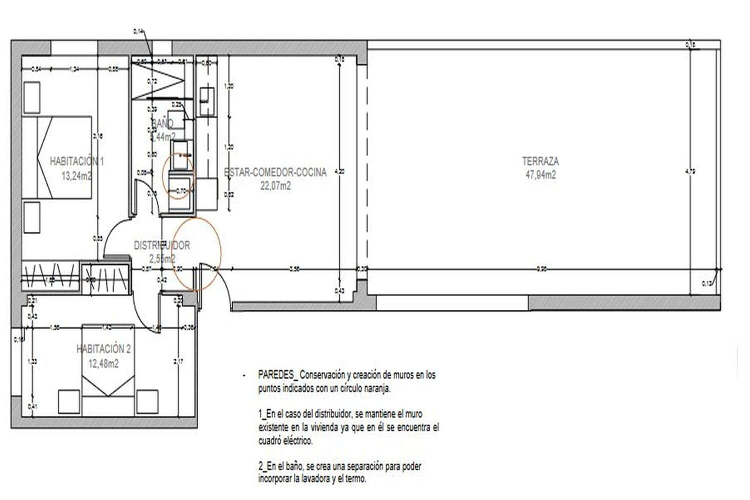
Die Wohnung bietet einen hellen, offen gestalteten Wohn- und Essbereich, zwei Schlafzimmer sowie ein Badezimmer. Ein besonderes Highlight ist die großzügige Terrasse, die ideale Voraussetzungen für einen entspannten Lounge- oder Chill-out-Bereich schafft. Gestalten Sie sich hier Ihren persönlichen Rückzugsort und genießen Sie entspannte Stunden im Freien.
Optional besteht die Möglichkeit, auch die benachbarte Wohneinheit über uns zu erwerben. Gerne informieren wir Sie unverbindlich über weitere Details.
Wohn- und Essbereich, 2 Schlafzimmer, Badezimmer
Energieeffizienz
Zuständiges Büro
Haftungs- und Courtageklausel
Alle Angaben basieren auf Informationen und Daten, die uns vom Verkäufer/Auftraggeber zur Verfügung gestellt wurden. Minkner & Partner übernimmt keinerlei Garantie für Vollständigkeit, Richtigkeit und Aktualität der Angaben und Legalität der Immobilie. Die angegebenen Preise enthalten nicht die vom Käufer zu tragenden Nebenkosten wie Steuern, Notar-, Grundbuch- und Gestoriakosten.
Laden Sie sich hier den Immobilien-Katalog “HOMEPAGES” von Minkner & Bonitz herunter.
Auf 124 Seiten finden Sie die aktuellen Immobilien-Angebote.


English
Español